TOULOUSE / Location Appartement 3 Pièces 66 m²

708 € charges comprises

Référence : GES07220003-433

Nous contacter

TAGERIM Gestion

Ce bien vous intéresse ?

Contactez-nous !

Description

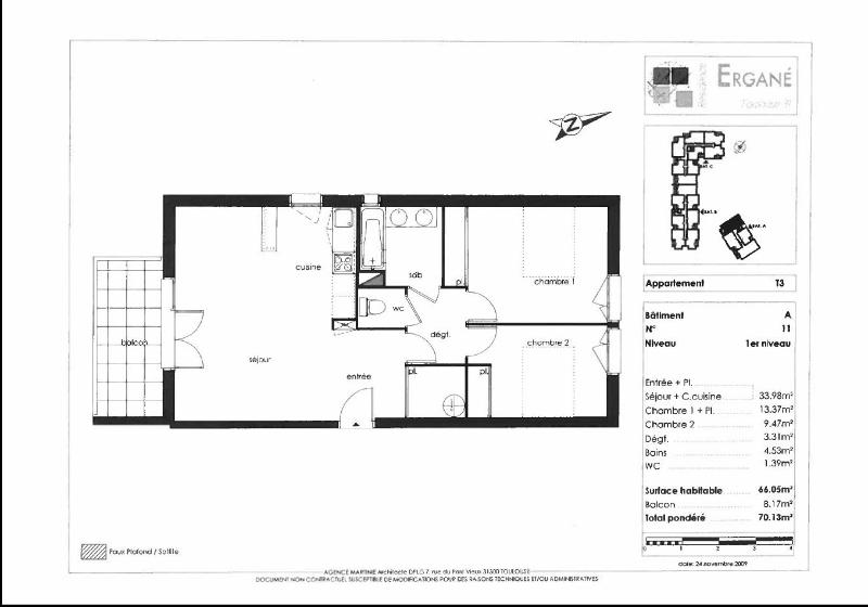
TOULOUSE 31200 - 2 rue Jean Dausset - RESIDENCE "ERGANE"
Dans résidence
récente
de standing sécurisée à 5
mn en voiture du métro Borderouge ( LIGNE B) et proche groupe scolaire, commerces et pistes cyclables. Agréable T3 ( A11) au 1er étage de 66.05 m² avec cuisine équipée ouverte sur un vaste séjour,
salle de bain , 2 chambres avec placard aménagé, balcon de 8.17 m², 1 parking sous sol privatif + 1 parking aérien. Disponible de suite.
Loyer 708.00€/mois charges comprises dont 89.00€ de provisions pour charges soumises à régularisation annuelle.
Loyer de 708,00 euros par mois charges comprises dont 89,00 euros par mois de provision pour charges (soumis à la régularisation annuelle).
Les honoraires charge locataire sont de 866,58 euros ( soit 13,12 euros/m² ) dont 200,13 euros pour état des lieux ( soit 3,03 euros/m² ).
Les informations sur les risques auxquels ce bien est exposé sont disponibles sur le site Géorisques : https://www.georisques.gouv.fr

Informations sur le prix

Loyer de 708 € charges comprises dont 89 € par mois de provisions pour charges - régularisation annuelle
Honoraires charge locataire : 866.58 € TTC
Dépôt de garantie : 619 €

Informations

  • Type de bien : Appartement
  • Disponible : immédiatement
  • Date de construction : 2011

Détails

  • Etage : 1
  • Etat général : Habitable
  • Meublé : non
  • Surface : 66 m²
  • Type de chauffage : individuel électrique
  • Nombre de pièce(s) : 3
  • Nombre de chambre(s) : 2
  • Nombre de salle(s) de bain : 1
  • Nombre de balcon(s) : 1
  • Nombre de parking(s) : 2

Equipement

  • Balcon/Terrasse
  • Parking

Bilan énergétique

Cat. C : 139
DPE C <= 180 DPE
Kwh/m²/an
Cat. C : 4
GES C <= 30 GES
KgeqCO2/m²/an

Bilan énergétique

DPE : 139
GES : 4

Les informations sur les risques auxquels ce bien est exposé sont disponibles sur le site Géorisques : www.georisques.gouv.fr

Localisation

Point d'intérêts

Nous écrire

Faisons connaissance

Pour des raisons de sécurité, merci de saisir le code suivant

Captcha anti-spam
(Regénérer)